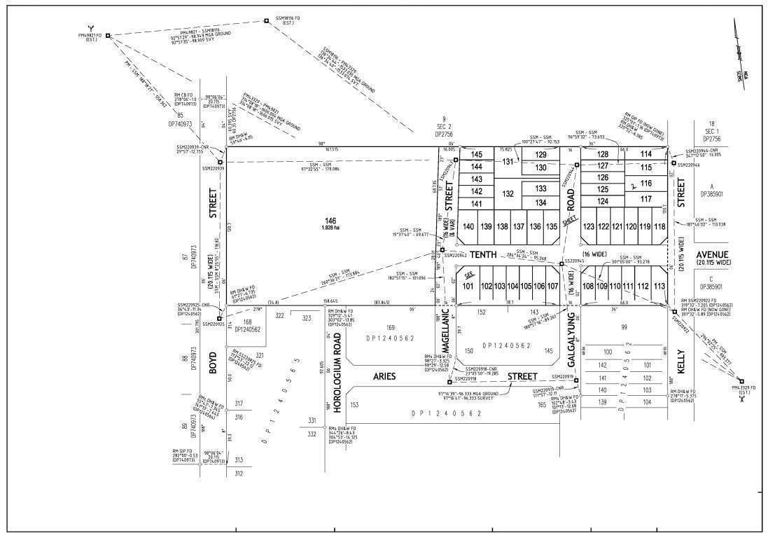
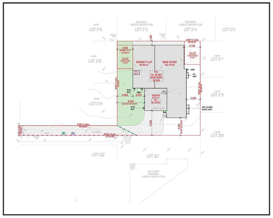
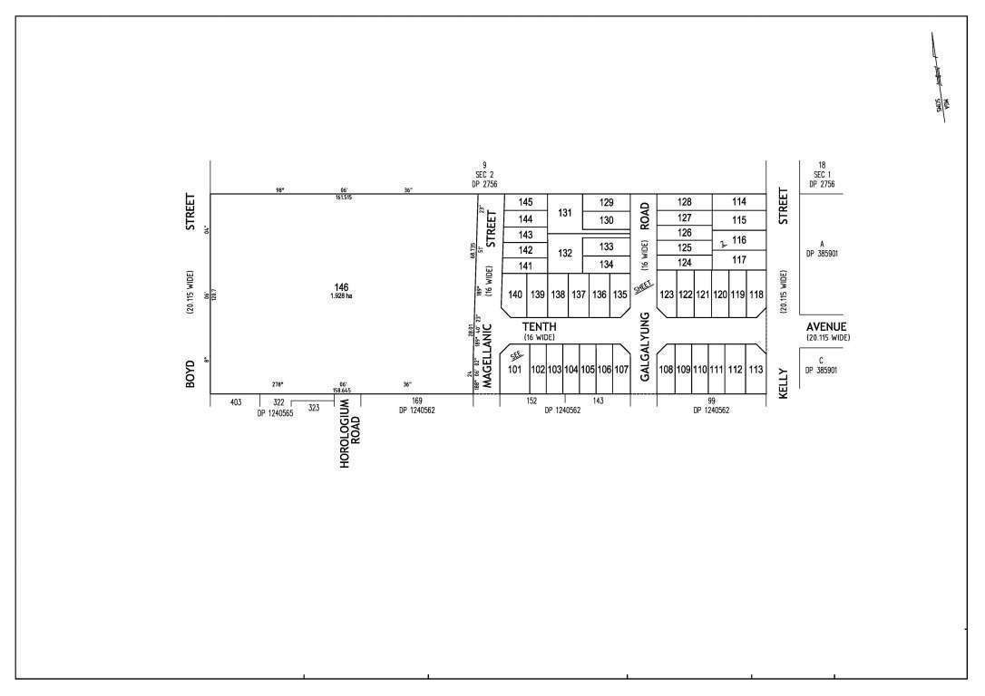
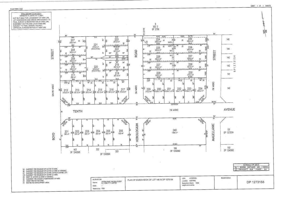
Project Description
Welcome to Horologium Road Estate Austral
The NSW Government has finalized the Austral and Leppington North Precincts rezoning by amending the State Environmental Planning Policy (Sydney Region Growth Centres) 2006 (the Growth Centres SEPP).
The Precinct Plans result from an extensive process managed by the Department of Planning and Infrastructure, in consultation with Liverpool and Camden Councils, stakeholders, and landowners.
Locations:
- 47.4km approx. to Sydney CBD
- 13.6km approx. Liverpool CBD
- 37km approx. Sydney Airport
- 21km approx. Western Sydney Airport
- 7.9km approx. Carnes Hill Market Place
- 2.3km approx. Austral Public School
- 7km approx. John Edmondson High School
Project Data
Strategy Type:
Existing Real Estate for Sale
Property Type:
Project
Land Reg. Date:
11-03-2026
Date Listed:
11-03-2026
Property Id:
19734
